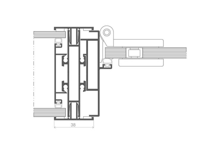
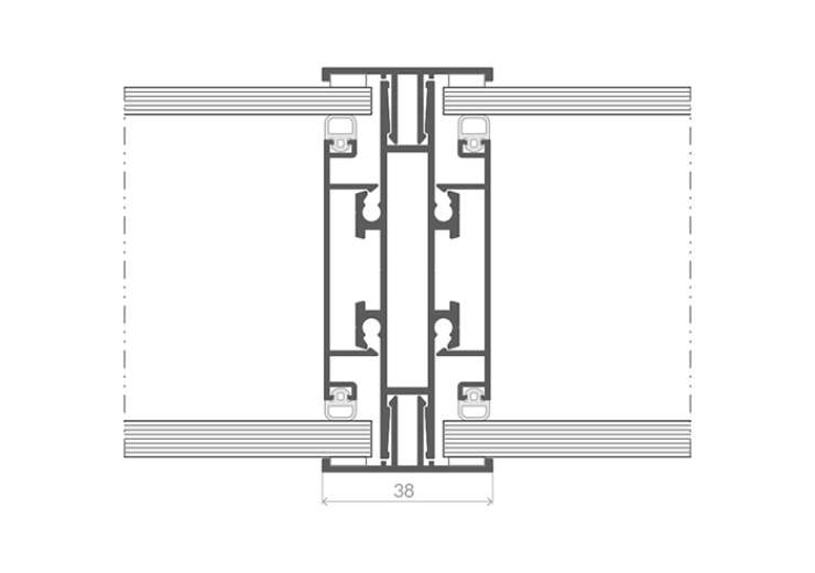
ACS 38
Systém ACS 38 se používá pro konstruování elegantních a štíhlých hliníkových stěn, výloh a vnitřních příček bez tepelné izolace s vysokou akustickou izolací.
Řešení umožňuje použití různých dveřních konstrukcí s využitím nejužších rámů typu slim a vytvoření místností se samonosným zastřešením, tzv. boxů. Systém se vyznačuje vysokými funkčními a estetickými vlastnostmi. Má Národní technické posouzení společné se systémem ACS 50.
| Vybrané parametry systému | ACS 38 |
|---|---|
| Akustická izolace neprůhledná výplň | až 52 dB |
| Akustická izolace skleněná výplň | až 46 dB |
| Infiltrace | 0,01 m3 (mhdaPa) 2/3 |
| Odolnost proti zatížení větrem | třída C3/B3 |
| Možnost použití | kategorie IVb dle ETAG 003 |
Design & funkčnost
- Subtilní konstrukce celoskleněných dveří – 6mm.
- Štíhlá vestavba – sloupky o šířce 38 mm.
- Integrace s dveřmi z Al systému ACS 50.
- Široká škála vnějších klipů zvyšujících statiku.
- Jednoduchá a rychlá prefabrikace díky profilům řezaným na spoj typu „T“.
- Jednoduchá a rychlá prefabrikace dokonce i na stavbě.
- Možnost vedení kabeláže elektrické instalace v profilu.
- Možnost montáže výplní se širokou škálou tlouštěk.
- Integrace meziokenní žaluzie s možnosti automatické regulace.
- Možnost implementace v kancelářských prostorách třídy A.
| Charakteristika systému | ACS 38 |
|---|---|
| Min. viditelná šířka rámu | 6 mm |
| Pohledová šířka profilů | 38 mm |
| Max. výška stěn | 5300 mm |
| Max. plocha skleněné výplně | až 6,0 m2 |
| Rozteč sloupků | až 2500 mm |
| Možnost zasklení | 5-13 mm |
| Tloušťka neprůhledných výplní | 5-84 mm |
Přidejte se ke spokojeným zákazníkům
Pokud máte zájem o nezávaznou kalkulaci, nebo podrobnější informace o nabízených produktech, sdělte nám vaše představy.
POPTÁVKAREFERENCE . OCHRANA OSOBNÍCH ÚDAJŮ
Copyright © 2026 CASTOR plus s.r.o. . Vytvořeno službou Kolibrio