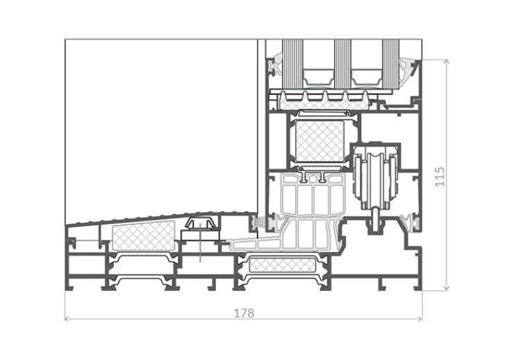
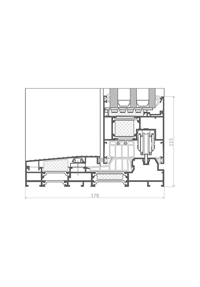
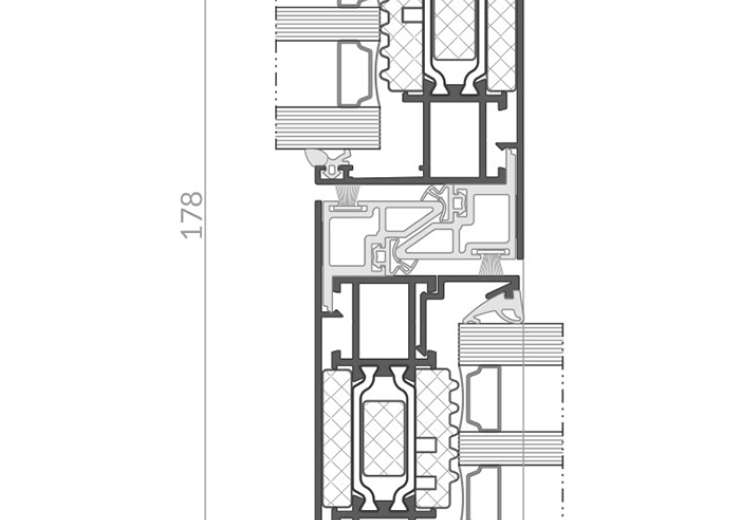
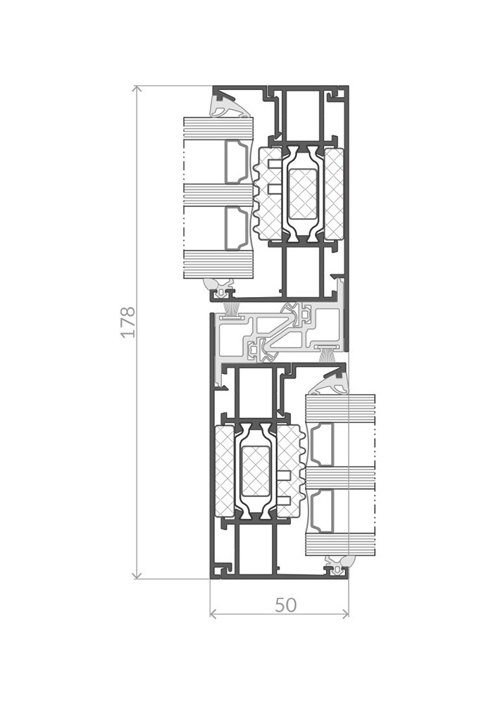
AS 178HS PRO SLIM
Řešení se používá ke konstruování velkoformátových celoskleněných zdvižně posuvných dveří nové generace určených pro bytovou výstavbu a další projekty, kde hraje důležitou roli jednoduchost ovládání a posuvu.
Standardní technologie ANTI-BIMETAL zajišťuje odolnost a správnou funkci bez ohledu na výrazné rozdíly teplot uvnitř i vně místnosti. Ploché západky dveří zase zaručují estetiku a bezpečné používání. Řešení je alternativou k nákladným úzkoprofilovým konstrukcím.
| Vybrané parametry systému | AS 178HS PRO SLIM |
|---|---|
| Tepelná izolace Uw | od 0,7 W/m2K |
| Propustnost vzduchu | třída 4 |
| Vodotěsnost | třída E1200 |
| Odolnost proti zatížení větrem | třída C3/B3 |
| Odolnost proti vloupání | třída RC2 |
| Akustika | 45(-2;-7) dB |
Design & funkčnost
- Systém dostupný ve všech konstrukčních schématech.
- Možnost konstruování celoskleněných a otevíravých rohů bez sloupku.
- Řešení úzkého sloupku: varianta ultra – 25mm, varianta slim – 50mm
- Možnost automatizace posouvání dveřních křídel. Automaty značky SIEGENIA a HAUTAU.
- Řešení je kompatibilní se systémovou síti proti hmyzu.
- Vícekolejnicové řešení na bázi dvou a tříkolejnicového rámu.
- Řešení nízkého „teplého“ prahu.
- Dostupné v provedení GLASS LINE s celoskleněným obkladem.
- Většina profilů řezaných na spoj typu „T“. O 10 % kratší doba prefabrikace.
- Úzké profily zástavby a lisované spoje hliníkových rámů.
- Možnost skrytí zárubně do zateplovacího systému.
- Jednodušší montáž dveřního křídla do rámu.
| Charakteristika systému | AS 178HS PRO SLIM |
|---|---|
| Max. výška křídla | 3300 mm |
| Max. šířka křídla | 3300 mm |
| Max. hmotnost křídla | 600 kg |
| Min. pohledová šířka rámu | 37 mm |
| Úzký sloupek | 25 mm / 50 mm |
| Max. tloušťka izolačního skla | 59 mm |
| Hloubka křídla | 78 mm |
Přidejte se ke spokojeným zákazníkům
Pokud máte zájem o nezávaznou kalkulaci, nebo podrobnější informace o nabízených produktech, sdělte nám vaše představy.
POPTÁVKAREFERENCE . OCHRANA OSOBNÍCH ÚDAJŮ
Copyright © 2026 CASTOR plus s.r.o. . Vytvořeno službou Kolibrio