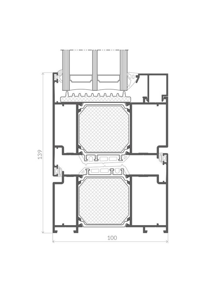
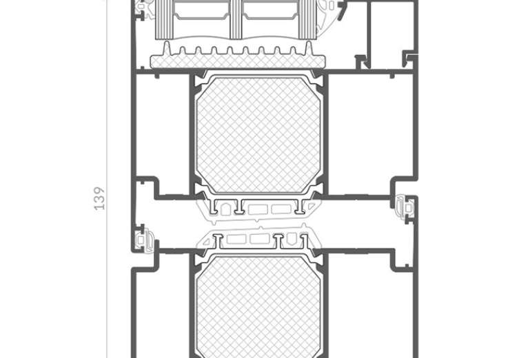
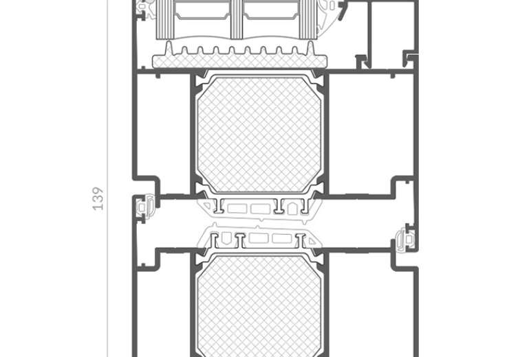
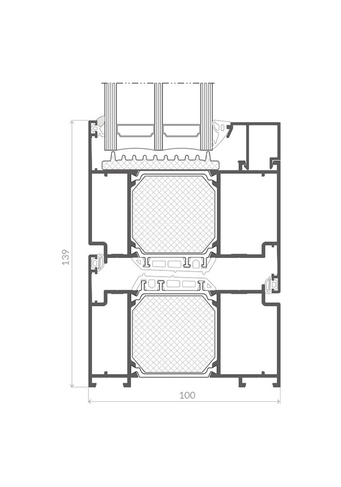
AS 100
Tříkomorový systém AS 100 je určen pro konstruování tepelně izolovaných výloh a dveří s izolačním sklem nebo neprůhledným panelem. Řešení zajišťuje vynikající tepelnou a akustickou izolaci vnější vestavby a zároveň zaručuje jednoduché provedení.
Systém je dostupný ve třech tepelných variantách, díky čemuž lze snadno přizpůsobit konstrukce tepelně izolačním parametrům požadovaným v projektu. V systému AS 100 byly použity dva typy profilů: základní a vyztužené, což se promítá do zvýšených pevnostních vlastností.
| Vybrané parametry systému | AS 100 |
|---|---|
| Tepelná izolace Ud | od 0,7 W/m2K |
| Propustnost vzduchu | třída 4 |
| Vodotěsnost | E750 Pa |
| Odolnost proti zatížení větrem | třída C5 |
Design & funkčnost
- Tříkomorová stavba Al profilů.
- Dveřní křídlo v líci s rámem (oboustranně).
- Možnost použití povrchových, válečkových nebo skrytých závěsů.
- Možnost konstruování dveří otevíraných dovnitř i ven.
- Možnost navržení jedno a dvoukřídlých dveří s bočními světlíky a nadsvětlíky.
- Jednoduchá montáž a prefabrikace.
- Optimalizace použitého systémového příslušenství.
- Možnost napojení na jiné systémy Aluron.
- Systém je určen pro konstruování dveří s výplní ve formě izolačního skla nebo neprůhledného panelu.
- Systémově integrovaný hliníkový základ usnadňující montáž a zlepšující tepelnou izolaci.
- Designové krytky odtokových drážek v barvě konstrukce.
| Charakteristika systému | AS 100 |
|---|---|
| Max. výška křídla | 3000 mm |
| Max. šířka křídla | 1400 mm |
| Max. hmotnost křídla | 280 kg |
| Stavební hloubka | 100 mm |
| Možnost zasklení | 37-68 mm |
| Spojení rámu a křídla | 139 mm |
| Min. pohledová šířka rámu | 69 mm |
Přidejte se ke spokojeným zákazníkům
Pokud máte zájem o nezávaznou kalkulaci, nebo podrobnější informace o nabízených produktech, sdělte nám vaše představy.
POPTÁVKAREFERENCE . OCHRANA OSOBNÍCH ÚDAJŮ
Copyright © 2026 CASTOR plus s.r.o. . Vytvořeno službou Kolibrio