AS 80US
Estetické řešení pro konstruování jedno a vícedílných oken.
Je určeno pro projekty, ve kterých má být okenní křídlo neviditelné z vnější strany budovy. Bez ohledu na to, zda se jedná o pevný nebo otevíravý díl, mají všechna přilehlá okna stejný vzhled z exteriéru. Systém AS 80US je kompatibilní s jinými hliníkovými systémy Aluron.
| Vybrané parametry systému | AS 80US |
|---|---|
| Tepelná izolace | od 0,71 W/m2K |
| Vodotěsnost | třída E 2400 Pa |
| Propustnost vzduchu | třída 4 |
| Odolnost proti zatížení větrem | třída C3 |
| Termické varianty | 4 |
Design & funkčnost
- Tříkomorová stavba Al profilů.
- Neviditelné okenní křídlo při pohledu z exteriéru.
- Čtyři termické varianty.
- Možnost vytvoření systémového celoskleněného rohu s libovolným úhlem s nastavitelnými spojkami.
- Možnost výroby ohýbaných prvků a to i svařovaných.
- Řešení je kompatibilní se systémovou síti proti hmyzu.
- Dostupné ve variantách S, O, O-S a S-O s pohyblivým sloupkem.
- Designové krytky odtokových drážek v barvě konstrukce.
- Kompatibilní s řešením inteligentní budovy.
- Možnost napojení na jiné systémy Aluron.
| Charakteristika systému | AS 80US |
|---|---|
| Max. výška křídla | 2700 mm |
| Max. šířka křídla | 1400 mm |
| Max. hmotnost křídla | 200 kg |
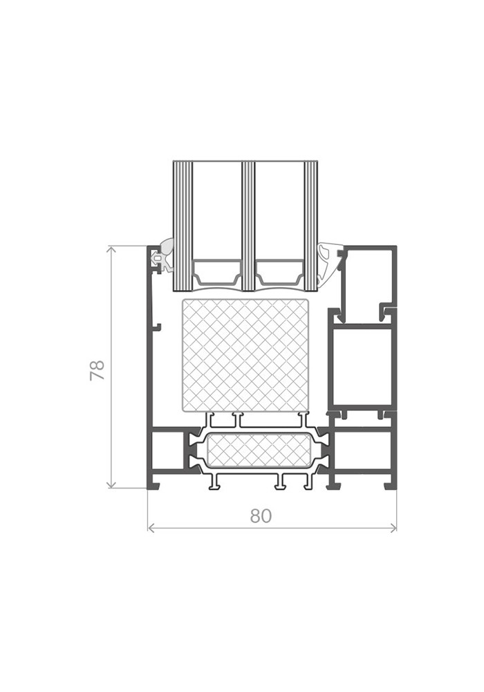
| Stavební hloubka rámu | 80 mm |
| Možnost zasklení | 21-68 mm |
| Stavební hloubka křídla | 84 mm |
| Min. pohledová šířka rámu | 78 mm |
Přidejte se ke spokojeným zákazníkům
Pokud máte zájem o nezávaznou kalkulaci, nebo podrobnější informace o nabízených produktech, sdělte nám vaše představy.
POPTÁVKAREFERENCE . OCHRANA OSOBNÍCH ÚDAJŮ
Copyright © 2026 CASTOR plus s.r.o. . Vytvořeno službou Kolibrio