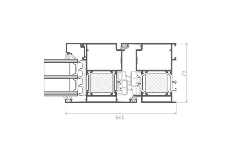
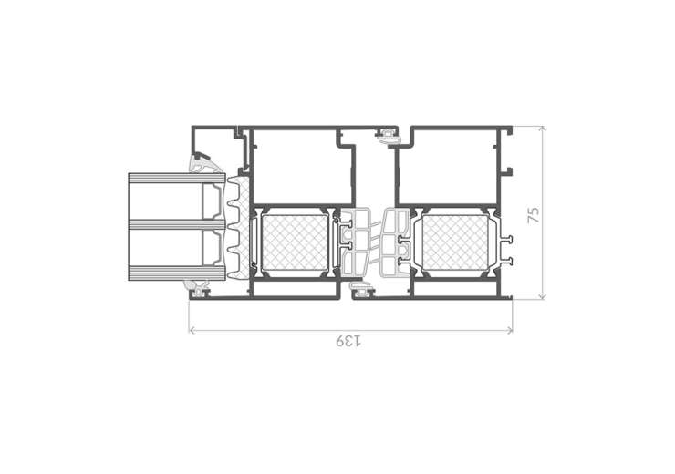
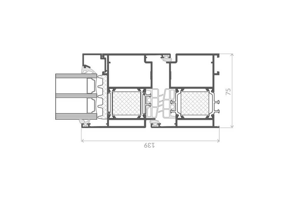
AS 75
Řešení je určeno k výrobě dveří odolných na deformace způsobené vysokým rozdílem vnějších a vnitřních teplot díky použití ANTI-BIMETALických tepelných mostů.
Tříkomorový systém AS 75 splňuje všechny zvýšené požadavky z oblasti termické a akustické izolace a to díky použití izolačních vložek nové generace. Minimalistický styl profilů je v souladu s moderními architektonickými trendy.
| Vybrané parametry systému | AS 75 |
|---|---|
| Tepelná izolace Ud | od 0,93 W/m2K |
| Odolnost proti vloupání | třída RC2, RC3 |
| Propustnost vzduchu | třída 4 |
| Vodotěsnost | třída E1200 |
| Odolnost proti zatížení větrem | třída C2 |
| Akustika | 41(-1;-5) dB |
| Třída užívání | třída 3 |
Design & funkčnost
- Tříkomorová stavba Al profilů.
- Dveřní křídlo v líci s rámem (oboustranně).
- Čtyři termické varianty.
- Možnost použití povrchových, válečkových nebo skrytých závěsů.
- Řešení je kompatibilní se systémovou síti proti hmyzu.
- Moderní prahové řešení se stavební hloubkou rámu a Al základního profilu.
- Možnost provedení evakuačních dveří: technických i panikových.
- Možnost provedení ve 12 variantách.
- Designové krytky odtokových drážek v barvě konstrukce.
- Systém používá patentované ekologické těsnění TPE.
- Kompatibilní s řešením inteligentní budovy.
- Optimalizace výroby díky použití identických spojek a systémových těsnění.
| Charakteristika systému | AS 75 |
|---|---|
| Max. výška křídla | 3000 mm |
| Max. šířka křídla | 1400 mm |
| Max. hmotnost křídla | 200 kg |
| Stavební hloubka | 75 mm |
| Možnost zasklení | 17-57 mm |
| Min. pohledová šířka rámu | 69 mm |
| Min. pohledová šířka křídla | 65 mm |
Přidejte se ke spokojeným zákazníkům
Pokud máte zájem o nezávaznou kalkulaci, nebo podrobnější informace o nabízených produktech, sdělte nám vaše představy.
POPTÁVKAREFERENCE . OCHRANA OSOBNÍCH ÚDAJŮ
Copyright © 2026 CASTOR plus s.r.o. . Vytvořeno službou Kolibrio